
The Urban Garden
Industrialized Net Zero Energy Housing
2012 | SOM Chicago
Collaborators: SOM + Center for Design Research at Virginia Tech
Project Description: Rapid urban growth requires new ways of design and construction for housing in cities. With an increasing premium for high performance, mass production techniques can potentially play a greater role in the production of high-volume modular components. The promise of factory-built housing has risen and receded each decade over the past century yet has not broken through to mainstream construction. This design research was an initial attempt to apply lessons learned from previous experiences and crack open new ideas regarding residential, high-density construction and the use of energy in buildings.
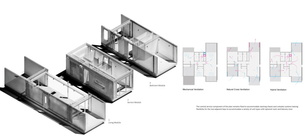
In this project, the goal was to develop and optimize an industrialized building system for low and mid-rise residential units on a site in south Chicago. By researching the feasibility and viability of prefabricated building modules, the intention was to merge sustainability, energy optimization, mass production and conservation with market demands and trends. Via utilizing fundamental sustainability practices for reaching near net zero energy performance, the project was designed as factory built-industrialized to provide two building types – eight story mid-rise and twenty story towers. Both types used the high-density typology of the townhouse stacked flat units with a shared vertical circulation core. It was supposed that a standard two- or three-bedroom flat would be manufactured in three prefabricated components including Living Module (containing the living and dining rooms), Bedroom Module (containing the bedrooms and closets), and Service or Smart Module (containing the kitchen, bathrooms, mechanical room, laundry room and all home electronics including the automated building control systems).

One of the drawbacks to living in a dense urban area, particularly a tall building, is the lack of connection to the outdoors. The proposed scheme provided a strong connection to the landscape though urban gardens. As a major part of the passive strategies for this project, each housing unit would have an expansive exterior garden patio on each side of the living space. These garden patios could be opened completely during the warmer summer months providing cross ventilation or be closed like greenhouses in the winter months to serve as insulating buffers to the indoor space. Large terraces with year-round gardens would become extensions of the living and bedroom spaces. During moderate weather these rooms could become extensions of the interior floor plan.
In the proposed tower, its units shifted to allow for greater solar access, larger outdoor living and garden spaces. The tower terraces were integrated into the massing to control solar shading, and the plan was optimized for natural ventilation through a solar chimney circulation tower. This circulation zone created a ventilation stack and a vertical garden that gave each resident a semi-private green space within a new neighborhood typology.

